САПФИР-3D 2014
Начались поставки новой коммерческой версии программного комплекса САПФИР-3D 2014.
Новые методы моделирования и функции редактирования модели
• Реализован режим формообразования, который дает возможность сгенерировать каркас здания по существующим 3D формам (призмы, поверхности вращения, конусы, сферы и т.п.). Автоматически формируются этажи заданной высоты, в узлах координационных осей расставляются колонны, создаются плиты перекрытия на основе сечений формообразующих объектов.
Создание конструкции по заданной форме
Создание конструкции по заданной форме
• Сервис автоматического формирования колонн в узлах пересечений координационных осей в пределах контуров заданных плит перекрытия.
• Разработаны новые режимы выполнения булевого вычитания контуров:
- вычесть из первого контура все остальные
- последний контур вычесть из всех предыдущих.
• Реализовано булево объединение для плит с проемами.
• Реализован механизм подрезки физической и аналитической моделей балок по другим объектам.
Подрезка физической модели балки
• Реализована возможность графического редактирования положения отдельных координационных осей в составе параметрической прямоугольной сети. При этом параметризация сохраняется.
• Добавлены новые возможности при моделировании лестниц: выбор базовой точки и динамическая отрисовка при построении.
• Усовершенствован алгоритм декомпозиции объектов «прочие» и «лестница» на составляющие, что позволяет преобразовать их в параметрические объекты для дальнейшего редактирования.
• Фильтр выделения объектов дополнен новыми критериями:
- выделение колонн по результатам подбора арматуры (процент армирования, суммарная площадь сечения стержней);
- поиск ж/б колонн, для которых не определены модели армирования;
- выделение линий по цвету и по имени.
• Реализован режим фрагментации активного этажа (команда Показать активный этаж с нажатой клавишей SHIFT). Режим предусматривает обновление фрагментации модели при смене активного этажа.
• Улучшен механизм формирования аналитических уровней для пересекающихся по высоте этажей, что позволяет корректно дотянуть/подрезать физические и аналитические модели вертикальных объектов.
• Добавлено управление параметром аппроксимации при создании криволинейных объектов: стена, балка, плита перекрытия, призма.
• Реализован инструмент Измерительная линейка для определения расстояния между объектами.
• Добавлены общепринятые маркеры привязок, используемые при позиционировании локатора.
• Реализовано копирование размеров между видами документирования, а именно между планами этажей и видами армирования.
Новые возможности для формирования чертежей и получения проектной документации
• Разработана функция создания разрезов для армируемых стен и колонн с возможностью их размещением рядом на рабочем виде.
Разрезы на виде армирования
• Для многоэтажных зданий ускорено формирование разрезов, заданных на плане.
• Реализована возможность преобразовать разрез в сечение и наоборот.
• На видах, для которых задано отсечение видимого изображения, обозначения координационных осей автоматически наносятся по периметру отсечённой зоны.
Отсечение обозначений осей
• Разработаны новые функции автоматического создания размеров:
- в сети координационных осей - шаг между осями;
- для колонн - размеры сечения и привязка к координационным осям;
- в поперечных разрезах армируемых колонн - привязка арматурных стержней к наружной грани и расстояние между стержнями;
- для зон раскладки дополнительной арматуры в плите - размеры зон и их привязка к координационным осям.
• Реализована возможность настроить вес линий для чертежей в проекте.
• Добавлена возможность создания редактируемых плоских чертежей из любых видов документирования.
Разработаны новые функции, позволяющие повысить корректность аналитической модели и степень готовности к расчёту
• Реализован режим «Условия опирания» (релиз R2 - июнь 2014).
Пользователь имеет возможность для плит перекрытий в местах их опирания на стены и колонны задать условия опирания (шарнирное, шарнирное с эксцентриситетом, свободное). Предусматривается также задание условий опирания произвольных элементов на произвольные элементы. В соответствии с введенной информацией в конечно-элементной модели автоматически выполняются соответствующие корректировки (расшивка узлов, введение АЖТ и объединение перемещений).
• Реализована возможность автоматического выполнения дотягивания, поиска пересечений и триангуляции при пересоздании аналитической модели.
• Разработан экспорт в ВИЗОР-САПР конструктивных блоков, которые содержат информацию о типе элемента (стена, колонна, балка, плита), принадлежности этажу, марке, жесткостных характеристиках, а также цвет и комментарий.
• Для нагрузок, экспортируемых в ВИЗОР-САПР, автоматически назначаются виды загружений (постоянное, длительное, кратковременное), коэффициенты надежности и доли длительности с возможностью их редактирования.
Загружения и коэффициенты
• Реализована возможность визуализировать нагрузки в их расчётных или нормативных значениях.
• Новый алгоритм автоматической подрезки торцов аналитической модели стены предоставляет возможность выполнять точную стыковку криволинейных примыкающих стен или стен, заданных не с осевой привязкой.
• Для объектов «прочие» (в терминах САПФИР) можно выбрать тип аналитической модели: пластина, стержень, оболочка.
• Для стен, балок, колонн, призм и объектов «прочие» введён новый режим Редактируемая аналитика, который позволяет скорректировать аналитическую модель, сохраняя неизменной физическую модель.
• Создан новый фильтр для постаналитической модели, который выполняет выделение стержней, пластин и нагрузок по различным свойствам.
Разработаны новые функции для связи с другими САПР через IFC и DXF файлы
• Разработаны специальные процедуры обработки IFC модели, получаемой из ArchiCad:
- распознавание отверстий в плитах перекрытий, выполненных нестандартными средствами;
- учитывается интерпретация объекта (несущий элемент, нагрузка, игнорировать);
- при импорте сохраняется относительная привязка объектов.
• Разработаны функции для преобразования одних типов объектов (стены, колонны, балки, плиты, призмы, прочие), в другие, например, стены в колонны, балки в плиты и т.д.
Данная функция позволяет в полуавтоматическом режиме выполнять корректировку импортированных IFC моделей.
Импорт и обработка модели из IFC
• Разработан сервис корректировки топологии модели, который обнаруживает и исправляет некорректности в топологии моделей, импортированных из Revit посредством IFC. Если стены и колонны, геометрически расположены за пределами этажей, к которым отнесены логически, они связываются с «правильными» этажами без изменения пространственного положения.
• Разработаны алгоритмы преобразования кривых NURBS (2, 3 и 4-го порядков) в кривые Безье, что позволяет адекватно воспринять линии, вычерченные в других программах и передаваемые посредством DXF.
• Автоматическое преобразование кривых Безье и сплайнов, используемых в САПФИР, в NURBS-линии, применяемые в других популярных программах, при экспорте в DXF.
• Усовершенствован импорт чертежей формата DXF и экспорт чертежей САПФИР в формат DXF.
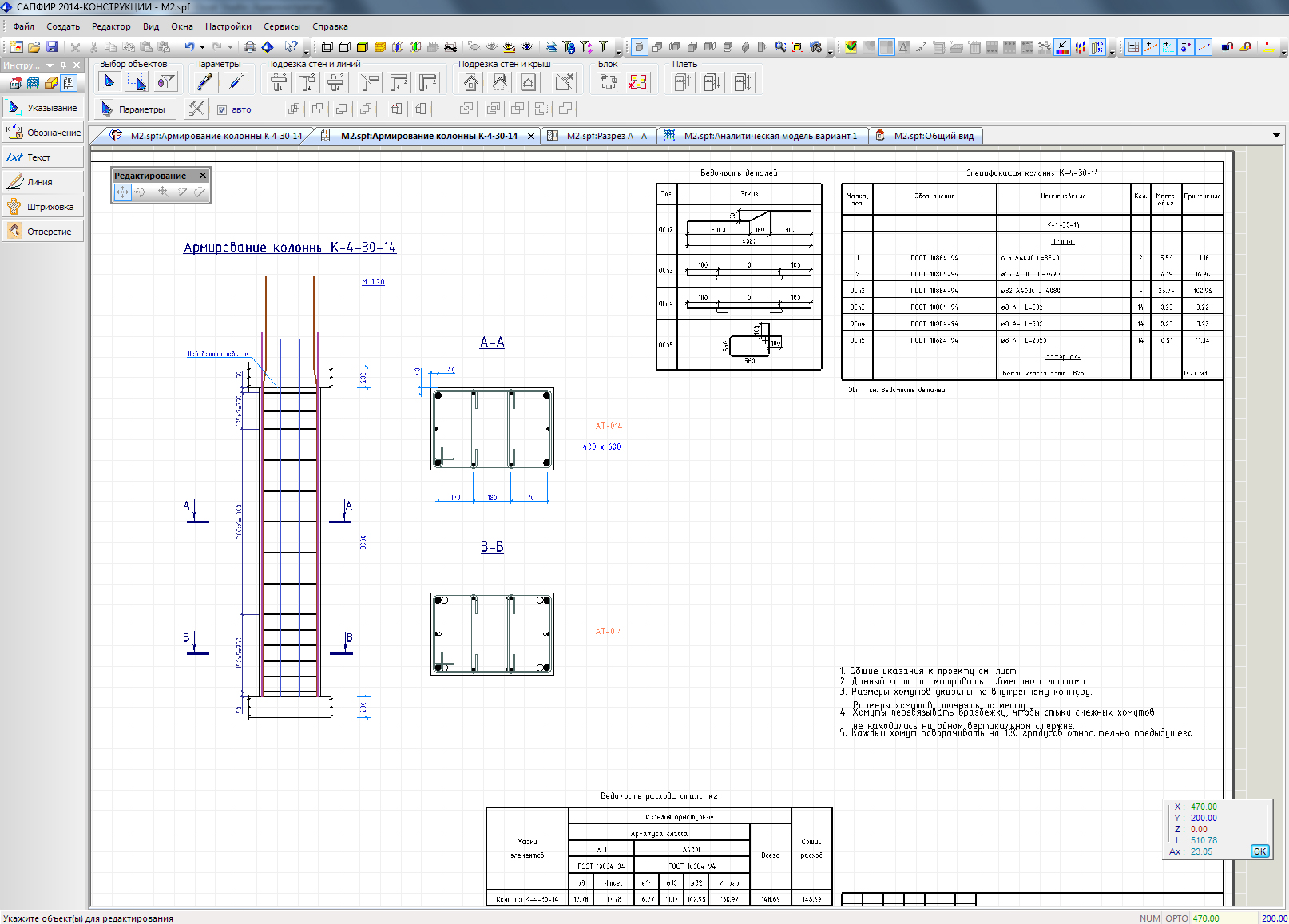
Разработана новая подсистема армирования колонн для САПФИР-ЖБК
• Созданы средства для формирования групп унификации колонн на основе результатов подбора арматуры с назначением марок и типов армирования (шаблонов положения арматурных стержней).
Армирование колонн
• Для унифицированной колонны выбранной марки выполняется конструирование в автоматизированном режиме. Создаётся редактируемая модель армирования, продольный и поперечные разрезы колонны, на которых отображены стержни рабочей арматуры, хомуты и шпильки.
Армирование колонн
• Инструмент для проектирования хомутов и шпилек в сечении колонны с автоматическим улавливанием огибаемых стержней.
• В виде 3D реализована визуализация арматуры для колонн, стен и плит перекрытия, включая зоны продавливания.
Визуализация арматуры колонн, диафрагм и плит перекрытий
• Имеется возможность получить чертежи армирования колонн каждой марки с разрезами, спецификации арматуры, ведомости расхода стали, ведомости деталей с эскизами шпилек и хомутов, а также маркировочный план колонн и стен со спецификацией ЖБ элементов.
Маркировочный план колонн и диафрагм |
|
Чертеж армирования колонн |
• Добавлена возможность разместить мозаику армирования плиты на чертеж для экспорта в dxf.
• Создан обучающий видеоурок по армированию колонны.
Армирование колонн
Для удобства перехода на новую версию предусмотрено сохранение проекта в файл формата *.SPF предыдущей версии САПФИР 2013
Оцініть можливості
Якщо у вас все ще є сумніви, завантажте демонстраційну версію та спробуйте або зв'яжіться з нашою службою підтримки для отримання більш детальної інформації.




Коментарі