Момент інерції фрагмента, розрахунок на вогнестійкість, вузлові реакції, акселерограми, демпфування, параметри тріщин, розрахунок на продавлювання, розрахунок сталевих колон, конструктивний блок, МЕТЕОР
- Для сталезалізобетонних перерізів відновлено можливість редагувати ширину перерізу (розмір 'В').
- Уточнено розрахунок моментів інерції при знаходженні центру жорсткості плоского горизонтального фрагменту будівлі, відкориговано жорсткістні характеристики, що виводяться в інформаційній таблиці.
- Виправлена помилка розрахунку на вогнестійкість круглих трубобетонних перерізів.
- В узагальнених задачах системи МЕТЕОР дозволено використання завантажень, сформованих «за формулою».
- Усунено дублювання власної ваги в елементах при операціях копіювання завантажень та копіювання властивостей елементів.
- При конструюванні стін із залізобетону уточнено перевірку на вертикальність окремих скінченних елементів стіни. Як граничне допустиме відхилення від вертикалі використовується значення, задане в налаштуваннях загальних параметрів для конструктивного блоку «Стіна».
- Уточнено обчислення вузлових реакцій у скінченних елементах товстих чотирикутних плит та чотирикутних плит з нульовою жорсткістю для нерівномірного розподіленого навантаження, прикладеного по площі елемента.
- Уточнено формування реакцій у вузлах скінченних елементів для монтажних задач зі скороченою кількістю ступенів свободи (ознака схеми не дорівнює 5), з непустими післястадійними завантаженнями та наявністю у схемі демонтованих елементів.
- При використанні трикомпонентної акселерограми (модулі динаміки 29 і 55) відновлено обчислення зусиль у всіх напрямках динамічного впливу.
- Усунено помилку врахування демпфування для задач, у яких для елементів схеми призначено різні коефіцієнти пропорційності маси та жорсткості.
- Виправлено помилку відображення стержневої арматури у діалоговому вікні "Характеристики перерізу з тріщинами" у випадку задання в елементі кількох ТЗА з різними характеристиками арматурних стержнів.
- Покращена якість зображення кнопок на стрічці при їх графічному масштабуванні на дисплеях з високою роздільною здатністю.
- Усунуті відмінності в результатах підбору арматури для сталезалізобетонних перерізів при виконанні конструктивних розрахунків у ВІЗОРі та при розрахунку у локальному режимі армування.
- Виправлено відмінності при виведенні відсотків використання перерізів сталевих колон у ВІЗОРі та в локальному режимі СТК, усунуто помилку переведення одиниць вимірювання у таблицях результатів СТК.
- У діалоговому вікні з візуалізацією розстановки арматури у перерізі стержня (режим "режим "Інформація про елемент"") уточнено напрямок місцевої осі Y.
- При розрахунку на продавлювання фундаментної плити на пружній основі від вищої колони, для випадку розімкнених контурів продавлювання уточнено значення сумарної відсічі ґрунту в зоні продавлювання.
- Розширена та доповнена контекстна довідка російською мовою, додана контекстна довідка українською мовою.
Оновлення торкнулися завантаження "за формулою", врахування багатокомпонентності сейсміки, МКЕ-процесор, "Таблиці введення", зміни №2 та №3 до СП 24.13330.2011 "Палеві фундаменти", "Інтеграція задач", підбір армування, імпорт *.ifc і *.dxf файлів, генерацію контурів продавлювання, перенесення спільних вершин додаткових ліній тріангуляції, копіювання балок з шарнірним обпиранням, а також системи САПФІР-Генератор та САПФІР-ЗБК
- Реалізована можливість створення нових завантажень як комбінації результатів розрахунку довільного набору інших завантажень. Для такого комбінування користувач формує в «Редакторі завантажень» мнемонічні формули, де в якості компонент використовуються посилання на існуючі номери завантажень, задаються коефіцієнти до цих компонентів і визначаються математичні операції над ними. Сформовані завантаження «за формулою» можуть бути використані при формуванні РСН/РСЗ та брати участь у конструктивному розрахунку. Одним із прикладів необхідності такого комбінування результатів від різних завантажень є вимога врахування багатокомпонентності сейсмічних впливів при розрахунку лінійно-спектральним методом, а також аналогічні вимоги ряду національних будівельних норм країн СНД і Європи (див. Наприклад, НП-031-01 "Норми проектування сейсмостійких атомних станцій", EuroCode 8 «Design of structures for earthquake resistance», СП РК 2.03-30-2017 «Будівництво в сейсмічних районах Республіки Казахстан»).
- У поточному релізі ПК ЛІРА-САПР 2019 прискорена процедура розкладання (факторизації) матриці для процесорів типу AMD (в першому релізі було реалізовано прискорення для процесорів типу INTEL)..
- Розширено перелік реалізованих «Таблиць введення». Додані «Таблиця в'язів» і «Таблиця коефіцієнтів пружної основи».
- Реалізовано Зміни №2 і №3 до СП 24.13330.2011 "Пальові фундаменти".
- Відкориговано Ycz (коефіцієнт умов роботи для обчислення горизонтальної жорсткості палі), для одиночної палі згідно СП 24.13330.2011 змін. 2 (2019R2 і старше) тепер за умовчанням дорівнює 1 (згідно з попередніми редакціями СП 24.13330.2011 (2019R1.2 і молодше) за умовчанням дорівнював 3).
- Відкориговано пропоновані за умовчанням діапазони К (коефіцієнт пропорційності) у таблиці характеристик ґрунтів у моделі ґрунту (зменшені у ~3 рази відповідно до змін 2 СП 24.13330.2011).
- У параметрах куща паль опція «Bp» (ширина спирання палі на С1 по бічній поверхні) тепер включена за умовчанням.
- Реалізовано п.7.2.9б СП 24.13330.2011 (змін 1-3), який свідчить, що для "...паль довжиною понад 40 м... ...за величину несучої здатності паль слід приймати навантаження на палю при розрахунковій величині осаду, що дорівнює 4 см" (жорсткість палі та несуча здатність на висмикування Fdt не коригуються).
- Відкориговано обчислення жорсткості бурових паль при лесових ґрунтах або ступеня вологості ґрунтів Sr>0.85.
- Допустима довжина імені задачі (довжина імені LIR-файлу) розширена до двохсот символів, якщо встановлено прапорець "Результати розрахунку в окремій папці".
- Для узагальнених задач системи «Інтеграція задач» (що об'єднують результати розрахунку декількох розрахункових схем з однаковою топологією), сформованих на базі об'єднання зусиль, дозволено створення та редагування користувальницьких таблиць РСЗ і РСН, а також створення кількох варіантів конструювання, подальший перерахунок за заданими таблицями сполучень і виконання конструювання.
- При роботі в системі «Інтеграція задач» уточнено формування узагальненої таблиці РСЗ у разі, якщо в налаштуваннях регіональних стандартів Windows в якості десяткового роздільника стоїть знак "кома".
- Стали доступними клавіатурні команди роботи з розрахунковою схемою (такі як DEL, CTRL+A та інші) при наявності активних діалогів-поплавків (наприклад, «Прапори малювання», «Поліфільтр», Редактор завантажень» та інші).
- У діалоговому вікні «Вогнестійкість елементу» уточнена візуалізація розподілу температури в нагрітій арматурі в разі нерівномірного нагріву залізобетонного перерізу..
- Для лінійних розрахункових схем у задачах з «Динамікою в часі» дозволено ставити передісторію і включати в неї додаткові завантаження.
- При імпорті в ПК ЛІРА-САПР текстового файлу задачі, створеної в ПК МОНОМАХ, тепер передається інформація про задані залізобетонні матеріали.
- При розрахунку динамічних впливів по методу «відповідь-спектру» (модуль динаміки 41) збільшений діапазон допустимих значень перехідного коефіцієнту до вибраного графіку спектру відповідей.
- В ряде диалоговых окон, использующих таблицы ввода данных, добавлена возможность автозаполнения. Реализованы новые команды контекстного меню: "Заполнить вниз/вверх/вправо/влево" и "Заполнить при вставке". Представлена также возможность ввода этих команд с клавиатуры с использованием "горячих клавиш".
- Уточнено алгоритм обчислення граничних звисів полиць у ребер жорсткості пластин.
- Додана можливість налаштування розміру кнопок на стрічці (стандартний розмір, великий розмір).
- Виправлена помилка врахування коефіцієнту надійності за навантаженням при розрахунку варіантів конструювання по зусиллям.
- Виправлена помилка врахування коефіцієнту умов роботи арматури при сейсмічних впливах у разі розрахування конструювання залізобетонних конструкцій по зусиллях і РСН.
- Виправлена помилка роботи системи документування при оновленні копій екрану для мозаїк результатів максимальних/мінімальних значень.
- Розширена і доповнена контекстна довідка до системи ВІЗОР-САПР.
Оновлення торкнулися інтеграції з Tekla Structures та Autodesk Revit, розрахунок на вогнестійкість, ЛІТЕРА, розрахунок сталевих коробчатих перерізів, СП 16.13330.2017, імпорт текстового файлу
-
Відновлено зв'язування ПК ЛІРА-САПР 2019 з версіями Tekla Structures нижче 2018i
- При повторному імпорті в Autodesk Revit результатів армування з ПК ЛІРА-САПР виключено необхідність ручного видалення графічних стилів відображення розрахунків
- Відновлено порядок проходження завантажень, що експортуються з Autodesk Revit версії 2016 та новіших у ПК ЛІРА-САПР. Також став можливий експорт із Autodesk Revit задач з короткими іменами довжиною менше 4 символів
- Уточнено алгоритм обчислення розподілу температур по перерізу відповідно до заданого періоду часу в умовах пожежі за нормами ДСТУ Н Б EN 1992-1-2:2012
- Виправлено помилку у обчисленні характеристик опору бетону на розтяг при розрахунках на вогнестійкість
- Виправлено візуалізацію користувацького графіка заданого температурного режиму при описі умов горіння для залізобетонних і сталезалізобетонних матеріалів
- При роботі з таблицею типів заданого армування (ТЗА) уточнено набір параметрів, доступних для редагування у загальній таблиці ТЗА
- Уточнено алгоритм обчислення РСЗ для групи сполучень А1 (розрахунок по першому граничному стану)
- Уточнено розрахунок коробчастих сталевих елементів у разі, коли коефіцієнт урахування поздовжнього зусилля (у напругах від моменту) має близьке до нуля або нульове значення
- Усунено можливе аварійне завершення роботи програми, що виникало при розрахунку сталевих перерізів хрестових в'язів із гнутих швелерів по СП 16.13330.2017
- При імпорті жорсткістних характеристик сталевих профілів із текстового файлу уточнено значення їхньої погонної ваги
- Відновлено можливість сформувати та зберегти звіт по локальному розрахунку жорсткості та несучої здатності поодинокої палі
- Для великих розрахункових схем (більше 3 млн. скінченних елементів) виправлено помилку запису результатів для головних та еквівалентних напруг
- Модифіковано імпорт із текстового файлу даних про жорсткість у разі, коли номери жорсткостей йдуть не по порядку або мають розриви
- При розгортанні головного вікна проекту після МКЕ-розрахунку забезпечена видимість раніше відкритих плаваючих вікон (таких як "Прапори малювання" та ін)
- Оновлена контекстна довідка
Оновлення торкнулися збирання навантажень, підбирання армування, розрахунок балки змінного перерізу, експорту зусиль.
-
Відкориговано збір нерівномірно розподіленого навантаження на скінченні трикутні елементи товстих плит, а також на трикутні пластини з модулем пружності, що дорівнює 0.
- Для задач на продавлювання, у режимі нової графіки (на основі DirectX) уточнено перерахунок габаритів схеми з урахуванням контурів продавлювання.
- Під час перегляду інформації про вузол у задачах на продавлювання відновлено перегляд складу сполучень зусиль по кнопці "Сполучення".
- Для великих розрахункових моделей оптимізовано час виділення на схемі груп об'єднання переміщень та абсолютно жорстких тіл (АЖТ) при роботі зі списками цих об'єктів.
- Виправлено підбір арматури для норм ДБН В.2.6-98:2009.
- При експорті наборів зусиль для елементів залізобетонних конструкцій у локальний режим армування усунуто помилку передачі деяких значень розрахункових сполучень навантажень (РСН).
- У локальному режимі армування додано можливість сортування та перенумерації рядків із розрахунковими сполученнями навантажень.
- Виправлено редагування та перегляд жорсткості сталевої балки змінного перерізу.
- Відновлено розрахунок швелера та C-подібного перерізу по СП 16.13330.2017.
- Виправлено розрахунок сталевої балки змінного перерізу у разі об'єднання СЕ конструктивний елемент.
- При перевірці/підборі сталевих перерізів з урахуванням сейсмічного впливу виправлено помилку врахування коефіцієнта mкр.
- При ітераційному уточненні параметрів жорсткості ґрунту та навантажень на палі за моделлю ґрунту на проміжних ітераціях відключено конструктивні розрахунки за варіантами конструювання.
- Розширено та доповнено контекстну довідку до систем ЛІР-ВІЗОР та ҐРУНТ.
Таблиці введення, .txt-файл, .dxf-файл, генерація температурних навантажень, мозаїки властивостей, перекоси, жорсткі вставки для стержнів, випадковий ексцентриситет мас, коригування жорсткостей, уточнення коефіцієнтів постелі та навантажень на палі, несуча здатність палі на висмикування, несуча здатність паль при сейсміці, сіть побудови, прискорення розкладання матриці, СЕ товстої плити та оболонки, розрахунок на сейсміку та пульсацію вітру, нова система "Теплопровідність", нова система "Вогнестійкість", розрахунок ребер жорсткості, "Підбалка", ТЗА, теорія Вуда, перевірка двотаврового стержня змінного перерізу, підбір та перевірка суцільних тонкостінних профілів, визначення розрахункового опору ґрунту та інші нові можливості програмного комплексу ЛІРА-САПР 2019.
Інтероперабельність
- Реалізована технологія побудови розрахункових схем за текстовими таблицями з даними. Вона дозволяє автоматизувати передачу даних в ПК ЛІРА-САПР з інших програмних комплексів. Одним із прикладів використання може служити оновлення характеристик ґрунтової основи по результатах розрахунку взаємодії системи «основа – фундамент – споруда» за допомогою додатків Midas GTS NX, PLAXIS та ін.
Можливі варіанти використання табличного вводу:- API ЛІРА-САПР;
- Повноцінний інструмент побудови розрахункових моделей;
- Імпорт даних з інших програм;
- Частковий імпорт та оновлення існуючої моделі.
- Розроблено двосторонній конвертер Tekla Structures 2018і – ЛІРА-САПР – Tekla Structures 2018і Конвертер Tekla Structures – ЛІРА-САПР – Tekla Structures дозволяє в повному обсязі виконувати розрахунок і проектування металевих і залізобетонних конструкцій.
- Розроблено новий імпорт розрахункової моделі з *.txt-файлу проекту. Оновлений імпорт надає можливість вибіркового налаштування категорій даних, які будуть перенесені у створюваний проект. Розгорнуті коментарі до розділів дозволяють легше орієнтуватися в структурі текстового документу.
- У новій версії виконано адаптацію двосторонньої зв'язки з Autodesk Revit 2020.
- При імпорті DXF-файлів реалізовано автоматичну генерацію конструктивних блоків на базі приналежності об'єктів до шарів, створених у AutoCad.
ВІЗОР-САПР
- Для нових систем «Теплопровідність» та «Вогнестійкість» розроблений зручний інтерфейс користувача для задання вихідних даних, перегляду та аналізу результатів, документування.
- Додана можливість створення температурних навантажень на елементи схеми за результатами розрахунку на теплопровідність. Вихідними даними для створення навантажень служать обчислені температурні поля.
- Прискорено генерацію графічного представлення розрахункової схеми на основі технології Direct3D для більшерозмірних схем.
- Виконано адаптацію елементів користувальницького інтерфейсу (графічних стрічок, меню, вкладок) для роботи з моніторами високої роздільної здатності UHD або 4К.
- Інформація про вузли та елементи розрахункової схеми (ліхтарик) оновлена і доповнена інформаційними вкладками, що описують вихідні дані та результати нових реалізованих видів розрахунків.
- Для контролю і документування, значно розширено перелік реалізованих мозаїк властивостей різних елементів розрахункової схеми:
- мозаїки заданого армування в пластинах по осях у верхній і нижній граней;
- мозаїки призначених конструктивних елементів і уніфікованих груп;
- мозаїки перекосів вертикальних елементів будівель і споруд;
- мозаїки несучої здатності паль при наявності сейсміки і сил, що висмикуються;
- мозаїки температур при вирішенні задач вогнестійкості;
- мозаїки межі вогнестійкості залізобетонних елементів;
- мозаїки змонтованих/демонтованих елементів.
- Додано можливість автоматичної генерації навантажень від власної ваги конструкцій у відповідності до заданої таблиці монтажних стадій..
- Додана можливість задання ребер жорсткості пластин (під балки) з автоматичним моделюванням жорстких вставок. Автоматизована генерація жорстких вставок для стержнів у напрямку місцевої осі X1 з метою зменшення гнучкої частини.
- Реалізовано формування контрольних точок для визначення перекосів вертикальних елементів будівель і споруд.
- Реалізовано задання ексцентриситетів докладання мас. Ексцентриситети можуть бути задані в глобальній системі координат за трьома напрямками. Для кожного динамічного завантаження їх величина може бути унікальна. Дана можливість дозволяє виконати вимоги багатьох нормативних документів, в частині врахування ефектів кручення, обумовлених невизначеностями у розташуванні мас і просторовими варіаціями сейсмічного руху.
- Автоматичне уточнення коефіцієнтів пружної основи С1 і С2 на основі ітераційного розрахунку. Реалізований алгоритм звільняє розраховувача від рутинних операцій і не вимагає втручання при виконанні повторних перерахунків.
- Додано задання коефіцієнтів коригування характеристик жорсткості для стержнів і пластин. У реалізований набір входять окремі коефіцієнти для роботи на стиск, вигин, кручення та ін. На основі введених коефіцієнтів обчислюються відкориговані жорсткісні характеристики, що використовуються розрахунковим процесором. Ця опція надає користувачеві додаткові можливості щодо організації більш раціонального армування діафрагм, балок та інших елементів, а також врахувати рекомендації багатьох нормативів, наприклад: СП 52-103-2007 щодо зниження жорсткості для колон, плит, жорсткості балок на кручення у складі ребристих плит.
Стаття у базі знань: Метод регулювання жорсткістних характеристик у комп'ютерних моделях
- Додана можливість побудови метричної сіті (регулярна координаційна сіть), яку можна використовувати для прив'язки при створенні нових об'єктів розрахункової схеми.
- Реалізовано розрахунок несучої здатності паль за моделлю ґрунту з урахуванням сейсміки і на висмикування.
- При моделюванні палі ланцюжком стержнів додано автоматичне обчислення глибини hd (ділянка ґрунту, що виключається з роботи палі на тертя) при сейсмічних впливах. В якості зусиль, що беруть участь при обчисленні, використовуються результати розрахунку схеми на сейсмічні впливи .
- В основних діалогових вікнах, таких як РСН, РСЗ, налаштування діапазонів шкали та ін., оновлені візуальні компоненти для редагування таблиць вихідних даних. Усунені можливі проблеми введення даних, що проявлялися при використанні колишніх редагованих таблиць в останніх версіях ОС WINDOWS.
МСЕ-процесор
- Прискорена процедура розкладання (факторизації) матриці. На процесорах Genuine Intel, Intel (R) Core (TM) i7 CPU 960 @ 3.20GHz, 4 фізичних ядер, 8 логічних ядер, RAM 10 ГБ, прискорення становить від 1.6 до 2.8 разів. На процесорах Genuine Intel, Intel (R) Core (TM) i7-8700K CPU @ 3.70GHz, 6 фізичних ядер, 12 логічних ядер, RAM 16 ГБ, прискорення становить від 2.5 до 4.2 разів. Так, наприклад, процедура розкладання матриці для рамно-в'язевої конструкції висотної будівлі (5,300,000 невідомих) з використанням другого з вказаних процесорів зайняла 16 хвилин.
- Удосконалено скінченні елементи теорії Рейснера-Міндліна (товстої плити). Тестові приклади показують більш точні результати в порівнянні з іншими реалізаціями.
- Реалізована можливість задавати в параметрах розрахунку на сейсмічні навантаження сумарний відсоток модальних мас, який повинен бути накопичений, а в параметрах розрахунку на вітер з урахуванням пульсації - ознака необхідності досягнення граничної частоти. Обчислення власних коливань тепер припиняється, якщо набрано задану кількість форм або виконані вищеописані умови, в залежності від того що настане раніше. Як кількість форм можна задати дуже велике число, щоб воно було фактично проігнороване як критерій зупинки обчислення власних коливань.
- Реалізовано розрахунок на вітер з урахуванням пульсації за нормами СП 20.13330.2016 із змінами №1 (модуль 21)
- При обчисленні власних коливань враховуються ексцентриситети, задані до мас, зосереджених у вузлах схеми. Ця можливість реалізована для всіх динамічних модулів.
- Реалізовано коригування жорсткістних характеристик елементів розрахункової схеми на основі заданих користувачем коефіцієнтів.
- Реалізовано методи моделювання стаціонарних та нестаціонарних процесів теплообміну. Введено нову ознаку схеми, розроблено спеціальні скінченні елементи.
- Для скінченних елементів типу 251, 252 (одновузловий і двовузловий СЕ односторонньої в'язі з урахуванням граничного зусилля) і 255, 256 (одновузловий і двовузловий СЕ пружних в'язів з урахуванням граничних зусиль) додано можливість управління гілкою розвантаження (нелінійно-пружно або з пластичними деформаціями).
- При розрахунку за методом "Інженерної нелінійності № 2" для елементів платформного стику можна подивитися мозаїки залишкових жорсткостей на зсув та осьову/мембранну жорсткість у площині СЕ.
- У новій версії для плит та оболонок із нульовою жорсткістю, тобто, для яких задано модуль пружності рівним нулю, розкид місцевих навантажень на вузли відбувається без виникнення моментів у вузлах. Іншими словами, при використанні таких елементів для збирання навантажень формуються реакції лише за напрямом дії навантаження.
- Поліпшено роботу СЕ 207 (фізично нелінійний двовузловий СЕ попереднього обтиснення -домкрат) та КЕ 208 (фізично нелінійний двовузловий СЕ попереднього натягу).
ҐРУНТ
- На основі тривимірної моделі ґрунту, реалізовано обчислення розрахункових опорів ґрунтів у рівні прикладання імпортованих навантажень, а також для зазначених користувачем відміток з подальшою візуалізацією у вигляді мозаїки. Даний розрахунок дозволить оцінити несучу здатність ґрунтів вибраних як основу будівель та споруд.
Сталеві конструкції
- Для двотаврового стержня змінного перерізу реалізована перевірка по першому та другому граничним станам. Перевірка дозволяє переконатися в тому, що задані у розрахунковій схемі металеві конструкції несуть задане навантаження. Результати розрахунку представлені у графічному та табличному видах. Змінні перерізи сталевої балки можуть бути обумовлені: змінною висотою стінки; перемінними ширинами полиць та їх варіаціями.
- Реалізовано підбір та перевірка перерізів для суцільних тонкостінних профілів відповідно до вимог СП 260.1325800.2016.
- Додано нову можливість задання марки сталі для групи елементів або для всієї схеми, незалежно від типу поперечного перерізу.
Залізобетонні конструкції
- Розширено інструменти для задання реального розміщення арматури для складних перерізів. Дана можливість доступна як для розрахунків фізичної, геометричної та інженерної нелінійності, так і для перевірки несучої здатності перерізів стержневих елементів згідно з чинним нормативним документом.
- Розроблено новий алгоритм перевірки міцності залізобенонних перерізів за теорією Вуда для норм СП 63.13330.2012. Цей алгоритм дозволив підвищити швидкість розрахунку та отримати якісніший результат підбору площі арматури для пластинчастих елементів..
- Модифіковано систему локального розрахунку залізобетонних перерізів. Новий ЛАрм дозволяє задавати і переглядати зусилля у тотожному з ВІЗОРом вигляді. Реалізовано можливість задання зусиль від сполучень типу А1 - D1 для розрахунків на міцність і сполучень типу А2 - D2 для перевірки розкриття тріщин. Додано задання сталезалізобетонних перерізів, типів заданого армування (ТЗА), характеристик для розрахунку ребер плит (підбалки) та параметрів вогнестійкості.
- Додано розрахунок сталезалізобетонних колон відповідно до ДБН. В.2.6-160:2010.
- Для норм СН РК EN 1992-1-1:2004/2011 на стадії підбору арматури враховано конструктивні вимоги.
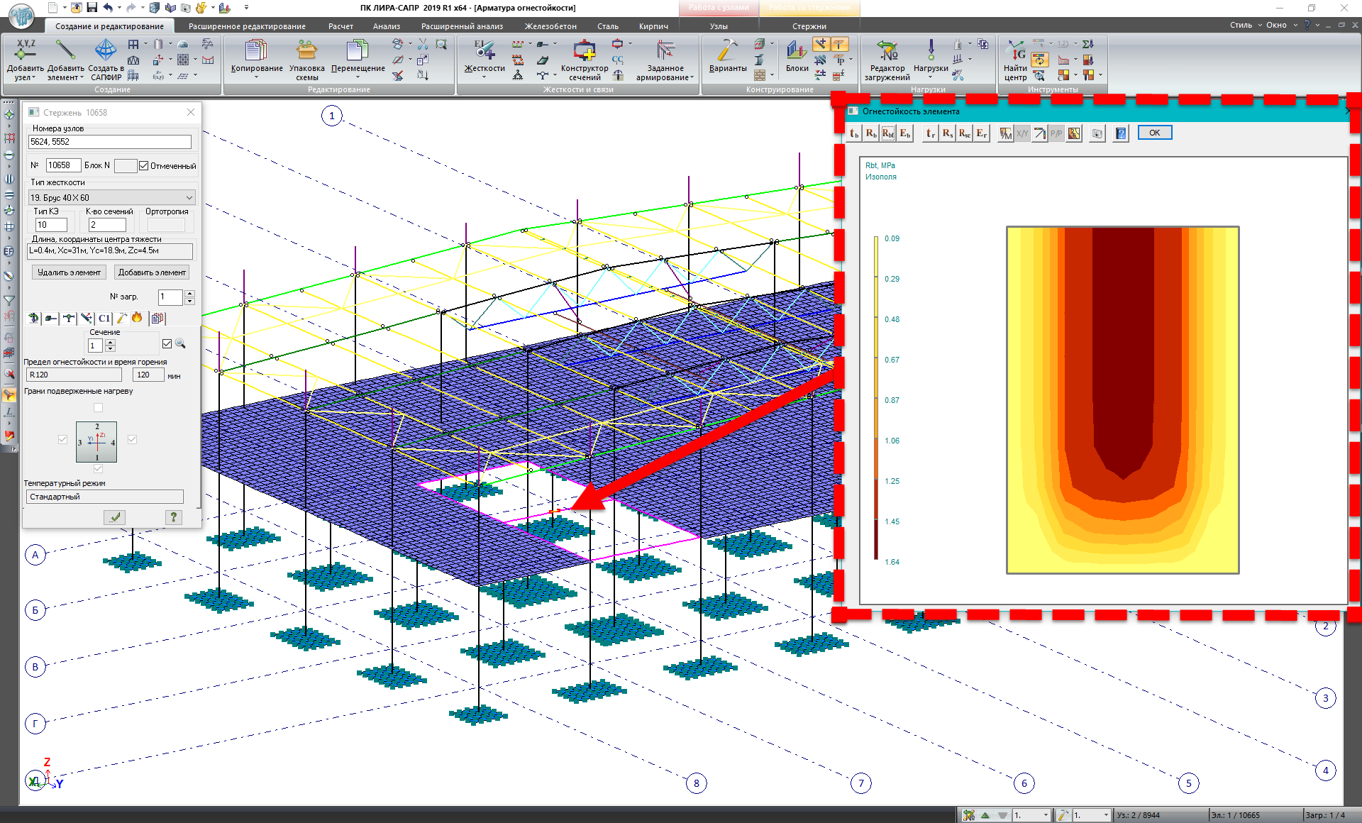
Нова система «Вогнестійкість»
- Реалізовано алгоритм підбору армування для забезпечення необхідної межі вогнестійкості на підставі положень, викладених у СТО 36554501-006-2006 з використанням нелінійно-деформаційної теорії. Розв'язання даної задачі зводиться до обчислення розподілу температур по перерізу, відповідно до заданого періоду часу в умовах пожежі; подальшим коригуванням фізико-механічних характеристик матеріалів на підставі отриманих температурних полів; перевірці несучої здатності елементів конструкції на дію нормативного навантаження та у разі невиконання вимог – нарощування армування. Розрахунок вогнестійкості реалізований для стандартних типів перерізів (прямокутник, кільце, тавр, двотавр, …), сталезалізобетонних (прямокутний бетонний переріз з різними варіантами розташування жорсткої арматури та різні трубобетонні перерізи) та пластинчастих елементів.
Реалізовано можливість задання параметрів температурних впливів та аналізу розподілу температур перерізу. Ще на етапі створення розрахункової моделі користувач може зробити експрес-аналіз раціональності заданих ним прив'язок арматурних майданчиків і не допускати їх перегрівання до критичної температури.
Стаття у базі знань: Вогнестійкість
Результати підбору армування представлені окремими мозаїками для стержневих та пластинчастих елементів. Таблиці підібраної арматури доповнені відповідними розділами.
Нова система «Теплопровідність»
- Реалізовано можливість моделювання стаціонарних та нестаціонарних процесів теплообміну. Для вирішення задач теплопровідності створено нову ознаку схеми (15). У цьому випадку вузли розрахункової схеми мають один ступінь свободи – температуру t.
- Реалізовано нові типи скінченних елементів: одномірні, плоскі та просторові СЕ теплопровідності. Також створено спеціальні скінченні елементи конвективної тепловіддачі для моделювання контакту поверхні з середовищем.
- Введені нові типи навантажень: задана температура у вузлі, тепловий потік на поверхні тіла, задана зовнішня температура для елементів конвекції, а також нестаціонарні види навантажень та променистий теплообмін (радіація).
Стаття у базі знань: Розв'язання задачі теплопровідності
Результати розрахунку задачі теплопровідності представлені в табличній та у графічній формі: у вигляді температурних мозаїк та ізополів.
Усі нові CЕ теплопровідності пройшли верифікацію щодо збіжності рішення з аналітичними методами.
Завантажити верифікаційні тести:
Задачі стаціонарної та нестаціонарної теплопровідності - PDF
Файли задач
Документування
-
Система документування "Книга Звітів" розширена для всіх нових можливостей ПК ЛІРА-САПР 2019:
- таблиця «Температура» для задач теплопровідності;
- таблиця «Сталь» для документування вихідних даних системи конструювання сталевих конструкцій
- пояснювальна записка до результатів підібраного армування.
Контекстна довідка
- Створена контекстна довідка для нових можливостей ПК ЛІРА-САПР 2019.




































